Maitrise d'ouvrage: | privée |
localisation: | Nord-sur-Erdre (44) |
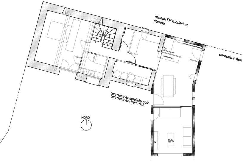
Programme: | 2ème extension d'une maison unifamilliale |
Travaux: | extension bois et isolation renforcée, menuiseries PVC et menuiserie intérieure bois |
Surface: | shon, 55m² |
Maitrise d'oeuvre: | Saillé & Aoustin |
RT 2012+30%, isolation laine de bois, panneaux de cellulose-ciment peints, plancher chauffant sur PAC |
---|
Avec les existants, la greffe délimite un espace extérieur intime et ouvert sur les prairies. L'ensoleillement du RDC de la maison existante est préservé, la séparation intérieure jour/nuit est réalisée.
Pour répondre à la demande de réduction de l'impact écologique, l'extension est à ossature bois et isolation renforcée en laine de bois (meilleure protection pour le confort d'été) et équipée d'un plancher chauffant branché sur une PAC aérothermique.