Maitrise d'ouvrage: | Privée |
localisation: | Sud-Ouest, Pau, Pyrénées-Atlantiques (64) |
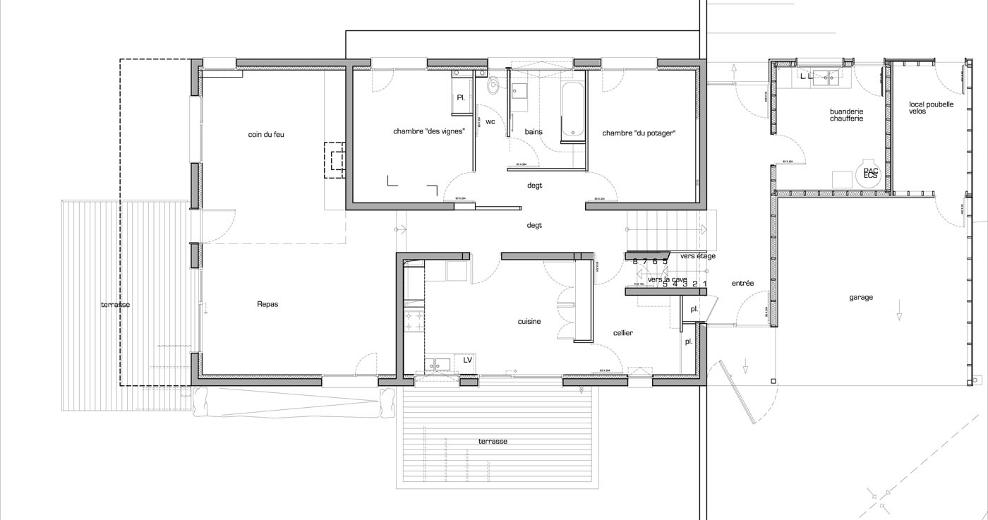
Programme: | maison de famille, géothermie, contemporaine mais d'influence locale |
Travaux: | maçonnerie, ossature bois, menuiserie bois, isolation renforcée RT+20% |
Surface: | shon, 250m² |
Maitrise d'oeuvre: | Aoustin & Sarthou |
bioclimatique, RT2005+40%, chauffage PAC et eau chaude par PAC /thermodynamique, récupération des EP pour jardin et WC, bois brut douglas, menuiseries bois brut. |
---|
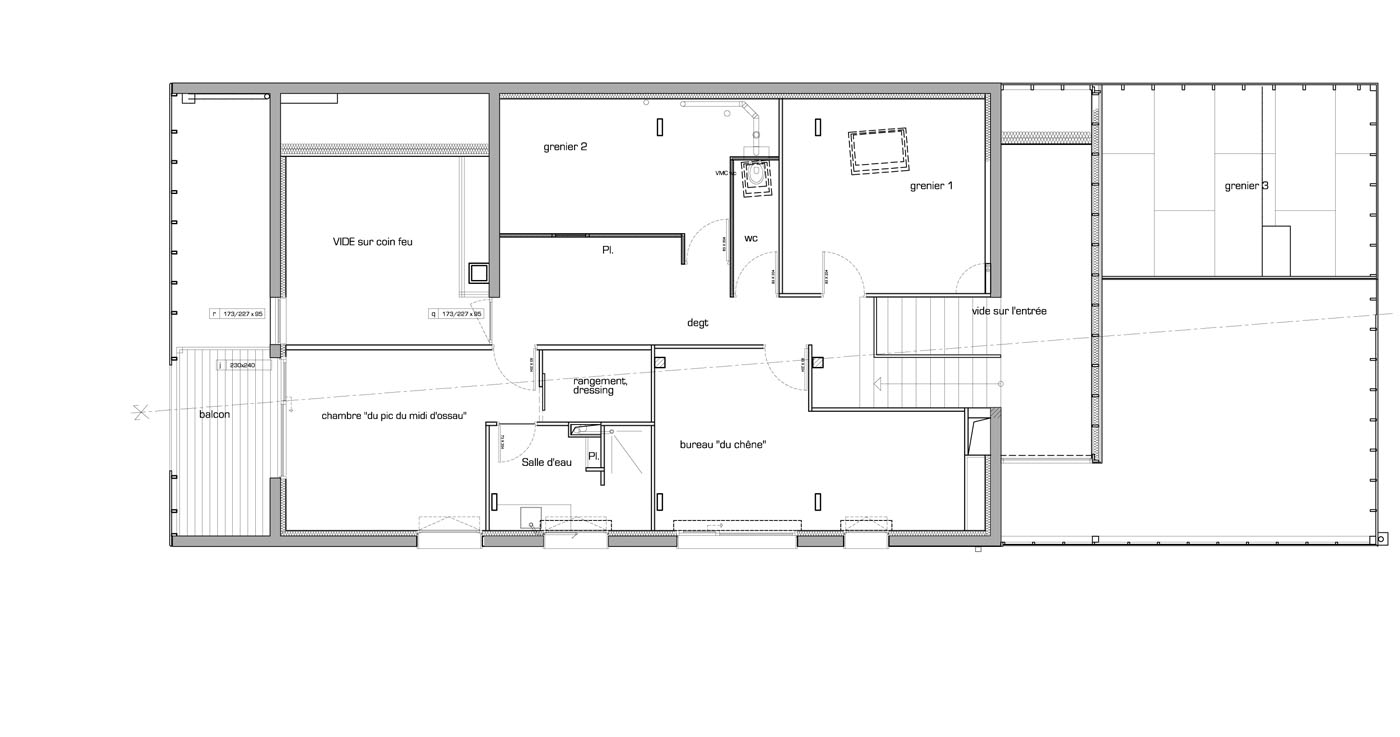
Une architecture bioclimatique où les espaces de services sont au Nord, où l'emplacement des pièces de vie est rythmé par la course du soleil: cuisine, sdb, chambres à l'Est, séjour-salle à manger avec triple orientation, chambre d'amis, bureau, grenier à l'Ouest.