Maitrise d'ouvrage: | AREA, Conseil Général (04) |
localisation: | Forcalquier, Alpes de Hautes Provence (04) |
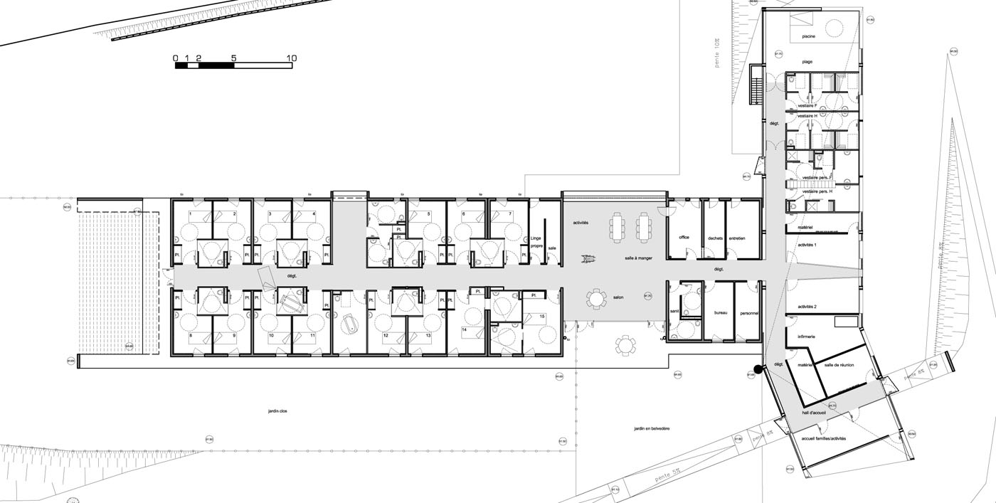
Programme: | NEUF : F.A.M. 16 lits + Balnéothérapie, REHABILITATION : M.A.S. 20 lits |
Travaux: | reprise du Gros-oeuvre, partitionnement intérieur, VMC collective, sécurité incendie. |
Surface: | shon: F.A.M 965m², M.A.S. 829m² |
Maitrise d'oeuvre: | Verbauwen & Aoustin |
insertion bioclimatique douce, ossature bois pour la Balnéothérapie, jardins thérapie |
---|
Une balade utile aux visiteurs serpente depuis l’accueil du centre pour profiter de la douceur du vallon. L'arrivée au poste d’accueil par le premier bâtiment noir va intensifier le ressenti de la lumière une fois entré. Le parcours d'accès aux chambres et espaces de vie va se faire symboliquement par le passage d'un bâtiment à l'autre. Le caractère privatif de la zone des chambres va en s'amplifiant jusqu'au bout de la perspective du couloir et l'ouverture sur le jardin du vent ; le plus intime des jardins, ouvert sur l'aval des Alpes.