Maitrise d'ouvrage: | Fondation Apprentis d'Auteuil |
localisation: | Angreviers, Gorges (44) |
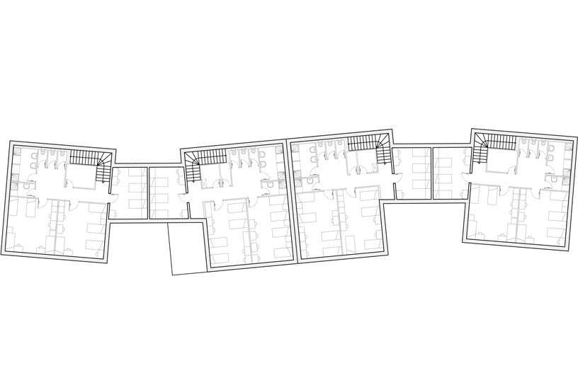
Programme: | logements en internat, 4 pavillons pour 64 lits |
Travaux: | Type courants BBC + ITE |
Surface: | shon: 1 219m² |
Maitrise d'oeuvre: | Saillé & Aoustin & Cailleau & Bcon |
BBC, isolation extérieure, compacité et bioclimatisme. Le programme demande une adaptabilité possible du bâti pour d'autres usages |
---|
Ainsi, la proposition architecturale prend en compte 2 aspects : "cellule" de vie et ensemble collectif.
Le bâtiment est un hybride dont le caractère s'approche de l'habitat en bande ménageant 2 espaces extérieurs en creux et des avancées identifiables à des maisons. L'effet est accentuée par des traitements différenciés de ces plans de façade (enduit ou bardage bois sur ITE). Enfin, les entrées des pavillons au sud, accessibles aux élèves, sont facilement identifiables par l'utilisation de 4 couleurs franches.