Maitrise d'ouvrage: | privée |
localisation: | Rezé (44) |
Programme: | rénovation avec libération du RDC pour une maison "nantaise" |
Travaux: | frangements des refends et pose de poutres acier, isolation par l'extérieur (ITE), menuiseries aluminium, réhabilitation intérieure |
Surface: | SP: 170 m² |
Maitrise d'oeuvre: | Saillé & Aoustin |
Rénovation conforme ANAH suivi par SOLIHA, RT2012 "existant" dit calcul par élément, TVA limitée pour les prestations d'amélioration thermique, ITE, bardage brut |
---|
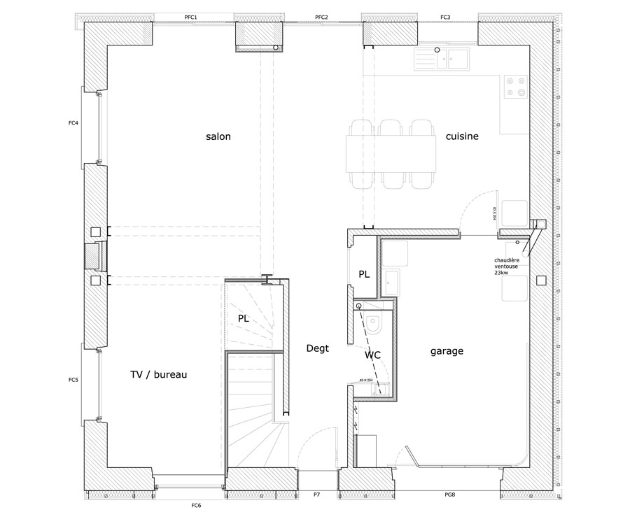
Une grosse adaptation du RDC est nécessaire avec la suppression de 5 refends, la démolition / déplacement de l'escalier et la pose des 5 HEA (poutre d'acier) pour soutenir le plancher de l'étage.
Une isolation par l'extérieur sur les 3/4 des façades et la pose d'un plancher chauffant permet d'atteindre une amélioration de plus de 40% de la performance thermique de la maison autorisant le centre de l'habitat (SOLIHA) à valider le projet auprès de l'ANAH.