Maitrise d'ouvrage: | Ville de Malville |
localisation: | Malville (44) |
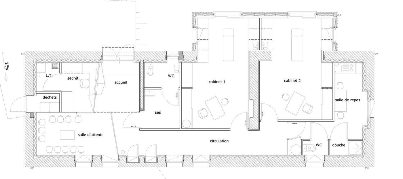
Programme: | Réhabilitation d'une ancienne ferme en centre médical pour 2 médecins. Extension pour les salles de consultation. Accueil, attente, sanitaire, locaux du personnel. |
Travaux: | Extension Ossature Bois, peinture minérale, isolation renforcée type BBC, stationnement. |
Surface: | SP: 114m² |
Maitrise d'oeuvre: | Cailleau & Aoustin |
isolation renforcée, Réglemention Thermique "par élément" + 40%, nouvelle dalle isolée, extension bois et bardage bois, peinture minérale sur l'ensemble du bâti |
---|
Les 2 médecins n'étant pas connus lors des études, de très larges modifications ont dû être opérées durant le chantier afin de conformer le plan aux habitudes des nouveaux résidents. La ville finance les travaux, pour la plus grande satisfaction des usagers.
La réhabilitation reste, dans ce type de projet où le bâtiment ne subit pas de trop lourdes modifications, un avantage économique réel, même en visant le niveau BBC comme pour le neuf. La vraie plus-value et le vrai risque restent au niveau de la capacité du plan existant à supporter l'amélioration et les nouveaux usages.